제품·프로젝트

글로벌이 인정한 송산
특수 승강 기술
산업 현장 맞춤
고신뢰 프로젝트 솔루션

삼성중공업 Ichthys CPF

하이트론

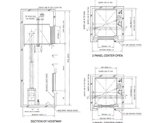
유압식 화물용 엘리베이터 저층·중층 물류/장비 운송 솔루션

하이트론 엘리베이터는 유압식(Hydraulic) 구동 방식 기반의 산업용·인화물용 엘리베이터로,
물류 상·하역 및 장비 운송 등 현장 운용에 맞춘 안정적인 승강 플랫폼입니다.
구조가 단순하고 유지관리가 용이해, 냉동·냉장, 창고, 생산시설, 공장 및 특수 현장 등 다양한 산업 환경에서 효율적으로 적용할 수 있습니다.

최대운행거리
현장 조건 따라 상이
운행속도
프로젝트별 적용
최대중량
현장 조건 따라 상이
최대탑승/적재규모
건축 계획 및 동선 조건 따라 상이

제품특징

현장 물류 운용에 최적화된 유압식 인화물 플랫폼

현장 물류 운용에 최적화된 유압식 인화물 플랫폼

하이트론은 유압 실린더 기반 구동으로 하중 대응과 안정 운행에 유리하며, 

물류·장비 운송 환경에 맞춰 출입/도어/제어 구성을 

프로젝트 단위로 적용할 수 있습니다.
점검·교체 접근성을 고려한 설계로 장기 운용 안정성과 유지관리 효율을 지원합니다.

 

  • 유압식 구동 기반의 안정 운행 및 하중 대응
  • 현장 동선에 맞춘 출입/운영 구성
  • 구조 단순화로 점검·보수 효율 향상
  • 냉동·냉장/창고/생산시설 등 산업 현장 적용

주요 기능

  • 물류/장비 운송
    물류/장비 운송
    현장 물류 흐름과 장비 운용을 고려한
    인화물 운송에 대응합니다.
  • 현장 맞춤 구성
    현장 맞춤 구성
    도어·출입·제어·승강로 조건을
    프로젝트 기준으로 적용합니다.
  • 유지관리 효율
    유지관리 효율
    점검 접근성과 교체 용이성을 고려해
    장기 운용 효율을 높입니다.

대표 사례

  • 경기테크노파크

    경기테크노파크

  • 천안보도육교

    천안보도육교

  • 공장/생산시설

    공장/생산시설

  • 유압식승객용엘리베이터

    유압식승객용엘리베이터